


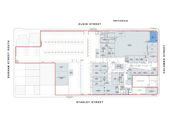
+3• 193sqm retail space
• External shop with great exposure to high foot traffic and great profiling on Colombo Street, Sydenham
• Shared carparks available as well as amenities
Available now, this is a great opportunity to be amongst a number of great retailers such as Smiths City, Annah Stretton, Vivo, and The Friday Market.
For other retail shops also available on site, contact the landlord agents today to find out more!

Our agents are experts on all things in the property market, if you haven't found what you're looking for, please enquire with the listing agent now to have all of your property questions answered.
Contact us and have your questions answered.